Přeskočit na obsah

Projekt

Dostavba II. ledové plochy

Dostavba II. ledové plochy

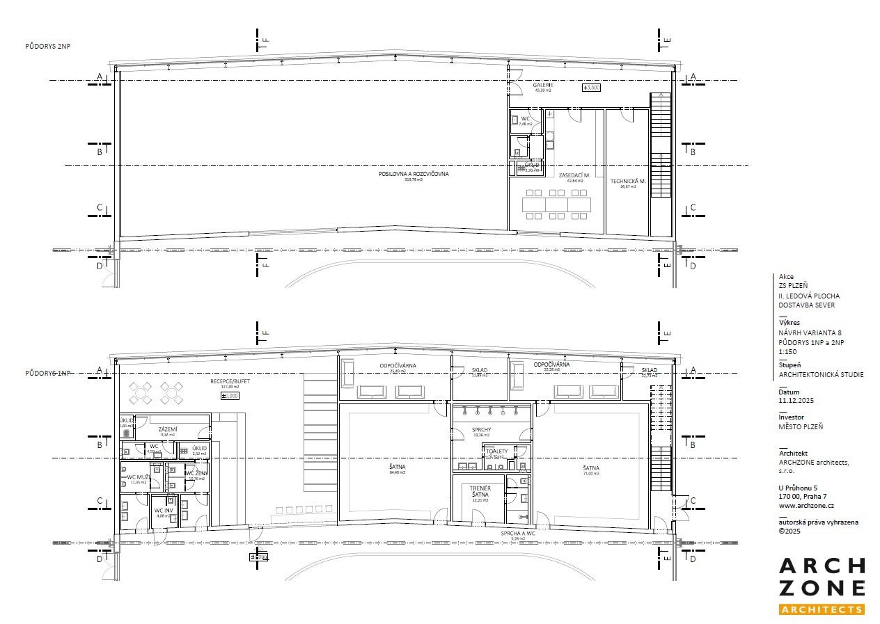
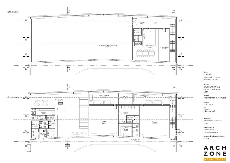
Předmětem projektu je rozšíření II. ledové plochy zimního stadionu o dvě pole (12 m) v místě stávající štítové stěny.


Průběh projektu

V nové části I. NP bude vybudováno kompletní zázemí pro hokejisty, zahrnující šatny s hygienickým zázemím, kancelář trenéra a pro návštěvníky stadionu bude vytvořen bufet s prodejem baleného občerstvení a toalety, vše s přímým přístupem z prostoru haly. Ve II. NP bude umístěna rozcvičovna, zasedací místnost a technická místnost.

Zpracovatelem projektové dokumentace je ARCHZONE architects, s.r.o.

Důležité milníky

Rok 9/2025: Termín zahájení zpracování projektové dokumentace
Rok 7/2027: Termín odevzdání projektové dokumentace

Benefity pro veřejnost

  • Rozšíření ledové plochy
  • Nové komfortnější zázemí
  • Chcete se dozvědět více informací o tomto projektu?

    Dostavba II. ledové plochy

    Podobné projekty

    Modernizace infrastruktury stadionu ve Štruncových sadech
    Sport
    V realizaci

    Modernizace infrastruktury stadionu ve Štruncových sadech

    Predátor Park
    Sport
    V realizaci

    Predátor Park

    Rozšíření lukostřelnice, Štruncovy sady
    Sport
    Schválené

    Rozšíření lukostřelnice, Štruncovy sady

    Sportovní areál Černice
    Sport
    V realizaci

    Sportovní areál Černice

    Sportovní areál Litice
    Sport
    Schválené

    Sportovní areál Litice

    Sportovní hala pro míčové sporty Bory
    Sport
    V realizaci

    Sportovní hala pro míčové sporty Bory

    Výstavba východní tribuny atletického stadionu v Plzni na Skvrňanech
    Sport
    V realizaci

    Výstavba východní tribuny atletického stadionu v Plzni na Skvrňanech

     Nová mola na Ostende
    Veřejné prostranství
    Schválené

    Nová mola na Ostende

    Bytový dům Emila Škody
    Bydlení
    Schválené

    Bytový dům Emila Škody

    Bytový dům Kreuzmannova
    Bydlení
    V realizaci

    Bytový dům Kreuzmannova

    Centrální nábřeží Mže
    Veřejné prostranství
    Schválené

    Centrální nábřeží Mže

    Domov pro osoby s kombinovaným postižením
    Sociální služby
    V realizaci

    Domov pro osoby s kombinovaným postižením

    Tvořte s námi Budoucí Plzeň