Přeskočit na obsah

Projekt

Sportovní areál Litice

Sportovní areál Litice

Sportovní areál Litice

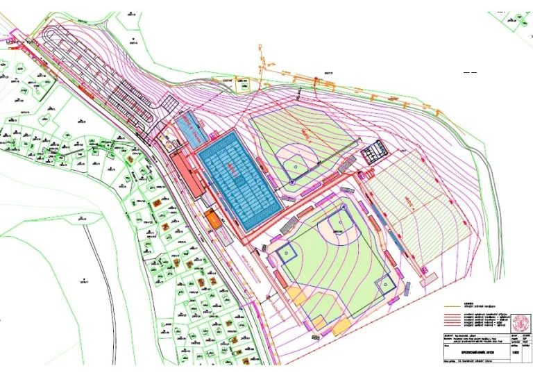
Sportovní areál je situován mimo obytnou část Litic za přehradou směrem na Valchu a zázemí v něm najdou tři plzeňské kluby Pilsen Patriots, Baseball Plzeň a Rugby Club Plzeň.


Průběh projektu

Areál je koncipován jako víceúčelový sportovní komplex zahrnující dvě baseballová hřiště včetně pálkovacích tunelů, hřiště s umělým povrchem pro americký fotbal, hřiště s přírodní travnatou plochou určené pro ragby, případně fotbal, a multifunkční sportovní plochu. Multifunkční plocha slouží k rozcvičení sportovců a tréninkovým aktivitám a v zimním období je uvažováno její zakrytí nafukovací halou. Součástí areálu je centrální budova zázemí pro všechna uvažovaná sportovní odvětví, zahrnující šatny se sociálním zázemím, klubové a společenské prostory, sklady sportovního vybavení a zázemí pro trenéry a rozhodčí. Součástí řešení je rovněž parkoviště pro osobní automobily s kapacitou 70 parkovacích stání, včetně souvisejících zpevněných ploch a inženýrských sítí. Zpracovatelem projektové dokumentace je WIENER servis s.r.o.

Důležité milníky

Rok 10/2024: Zahájení zpracování projektové dokumentace
Rok 5/2026: Odevzdání projektové dokumentace pro povolení záměru vč. inženýrské činnosti

Benefity pro veřejnost

  • Nabídka zázemí pro širokou škálu sportů (baseball, americký fotbal, ragby, fotbal) a doplňkové aktivity
  • Komplexní zázemí
  • Vysoký standard tréninku
  • Chcete se dozvědět více informací o tomto projektu?

    www.plzen.eu
    Sportoviště bude splňovat všechny standardy 21. století.
    Sportovní areál Litice

    Podobné projekty

    Dostavba II. ledové plochy
    Sport
    Schválené

    Dostavba II. ledové plochy

    Modernizace infrastruktury stadionu ve Štruncových sadech
    Sport
    V realizaci

    Modernizace infrastruktury stadionu ve Štruncových sadech

    Predátor Park
    Sport
    V realizaci

    Predátor Park

    Rozšíření lukostřelnice, Štruncovy sady
    Sport
    Schválené

    Rozšíření lukostřelnice, Štruncovy sady

    Sportovní areál Černice
    Sport
    V realizaci

    Sportovní areál Černice

    Sportovní hala pro míčové sporty Bory
    Sport
    V realizaci

    Sportovní hala pro míčové sporty Bory

    Výstavba východní tribuny atletického stadionu v Plzni na Skvrňanech
    Sport
    V realizaci

    Výstavba východní tribuny atletického stadionu v Plzni na Skvrňanech

     Nová mola na Ostende
    Veřejné prostranství
    Schválené

    Nová mola na Ostende

    Bytový dům Emila Škody
    Bydlení
    Schválené

    Bytový dům Emila Škody

    Bytový dům Kreuzmannova
    Bydlení
    V realizaci

    Bytový dům Kreuzmannova

    Centrální nábřeží Mže
    Veřejné prostranství
    Schválené

    Centrální nábřeží Mže

    Domov pro osoby s kombinovaným postižením
    Sociální služby
    V realizaci

    Domov pro osoby s kombinovaným postižením

    Tvořte s námi Budoucí Plzeň